Бывший генеральный прокурор Украины Святослав Пискун является владельцем роскошной виллы в городке Ле Канне на Лазурном побережье вблизи Канн.
Об этом в своем блоге на "Украинской правде" пишет народный депутат от Блока Петра Порошенко (БПП) Сергей Лещенко.
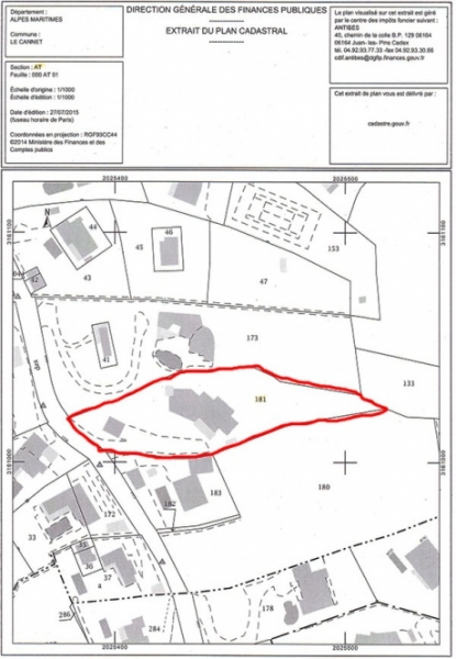
Он указывает полный адрес виллы: 1745 Chemin des Collines, Le Cannet, France 06250.
Дом оформлен на компанию SCI Kuasar, купленную на его жену Светлану Пискун и дочь Татьяну Иващенко в декабре 2011 года. Именно здесь и жил Пискун, когда во времена Януковича сбежал из Украины.
При этом Лещенко привел выдержки из реестра французских компаний, а также кадастра города Ле Канне. Земельный участок Пискуна - 181.


Ранее нардеп заявлял, что Пискун подделал документы - проставил фальшивые штампы в свой загранпаспорт, чтобы создать представление, что он во времена Януковича жил в Украине, и имеет право баллотироваться на выборах 2014 года.
Пискун утверждал в суде, что целый год жил на базе в "Буковеле".


"Фальшивые штампы в паспорт были проставлены в Днепропетровском аэропорту, который контролировал Игорь Коломойский. Так же Коломойский владеет "Буковель", который создал алиби для Пискуна. И именно благодаря Пискуну десять лет назад, в 2005-м Коломойский избежал уголовного дела за покушение на убийство адвоката Карпенко. Закрытие дела стоило 50 млн долларов. Сумма была многократно возвращена Коломойским назад через "Укрнафту", - считает Лещенко.
Нардеп отметил, что уже не один месяц добивается возбуждения уголовного производства против Пискуна за подделку документов. На прошлой неделе прокуратура Киева сообщила, что экс-генпрокурор теперь под следствием.
"Надеюсь, что этот эпизод дополнят незаконным обогащением и взяточничеством, а вилла на Лазурном побережье Франции с места отдыха от украинской обыденности превратится в вещественное доказательство по делу", - написал нардеп.


